62 m²
Design Description
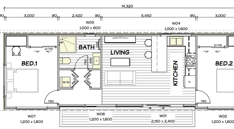
The Marsden brings together comfort, style, and practicality in a well-balanced design. Featuring two generously sized bedrooms, it offers plenty of space for family living or hosting guests. The central open-plan kitchen and living area provides a bright, social hub that’s perfect for everyday life or entertaining.
A modern bathroom with an integrated laundry adds convenience without compromising on style. Designed for versatility, The Marsden adapts easily as a family home, rental property, or relaxed holiday retreat — a smart, all-round solution that feels spacious, functional, and inviting.
Full Specification
These features are standard across all designs. Some features may vary. Get in touch with us for a detailed specification

Frame
-
90mm NZ Made Steel Wall Framing
-
140mm NZ Made Steel Roof Framing
-
NZ Made Steel Floor Joists
-
H3.2 Timber Perimeter Bearer
-
20mm particle board flooring

Appliances
-
F&P Single Dishwasher
-
Haier 90cm Rangehood
-
Haier 60cm Ceramic Cooktop
-
Haier 60cm Built in Oven
-
Haier 433l Fridge Freezer

Exterior
-
0.40 Corrugated Colorsteel Maxam Cladding and Roofing
-
150 x 25 Hardwood Shiplap Cladding
-
IBS Rigidwrap XT RAB Board
-
Colorsteel Multiline Fascia System.

Bathroom
-
1.4m x 1.0m Motio Shower
-
Glide RainBoost Twin Shower Column.
-
Fuori Toilet Suite
-
Gas Califont Hot Water system
-
900mm Cashmere Vanity

Interior
-
GIB Plasterboard Walls and Ceilings
-
12mm Plygroove Feature Wall
-
60 x 10 Pine Skirtings and Architraves
-
R2.8 Wall Insulation
-
R6.0 Ceiling Insulation

Kitchen
-
Soft close drawers & cupboards - 18mm Melamine Fronts
-
38mm Laminated Bench Top
-
Glass Splashback
-
Vinyl Floor Planks







